Opslagplaats
€ 2.500

Delften 23, 2390 Malle
    • delen

Omschrijving Ref.: 7128086

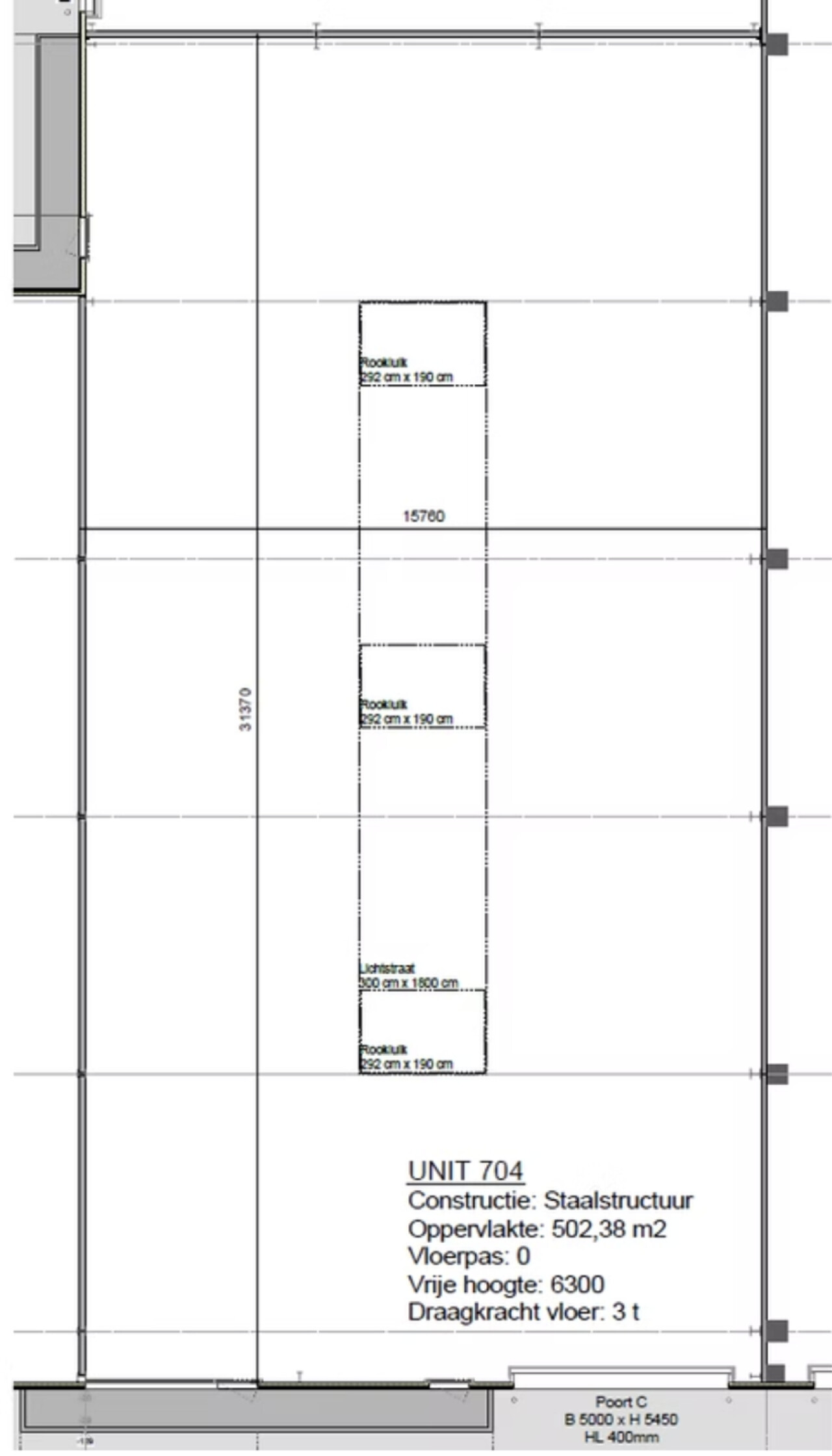
Magazijn op uitstekende locatie in Malle


Gelegen op het bedrijventerrein aan Delften 23 in Malle, provincie Antwerpen, bieden wij een magazijn van circa 500 m² te huur aan. Deze locatie langs de Zoerselbaan vormt de verbindingsweg tussen Malle en Zoersel, en is uitstekend bereikbaar via de snelwegen E34 (Antwerpen - Turnhout - Eindhoven) op ongeveer 5 km, E19 (Antwerpen - Breda) op circa 11 km en E313 (Antwerpen - Hasselt - Luik) op ongeveer 12 km afstand. Openbaar vervoer is beschikbaar met De Lijn buslijnen 417 en 429, met haltes op ongeveer 300 meter afstand.

Voorzieningen:
-Automatische sectionaalpoort met aparte ingang (H=5,40m)
-Halogeen verlichting
-Drie-fase stroom (63A)
-Betonvloer (3 ton draaglast)
-Vrije hoogte: 6,30m
-Zonnepanelen

Bestemming en gebruik: Dit magazijn is ideaal geschikt als opslagruimte en is gelegen in een industriezone.

Bereikbaarheid:
E34: Antwerpen - Turnhout – Eindhoven (Nederland) op ca. 5 km afstand
E19: Antwerpen – Breda (Nederland) op ca. 11 km afstand
E313: Antwerpen – Hasselt – Luik op ca. 12 km afstand
Openbaar vervoer:
De Lijn 417 - Sneldienst Antwerpen-Turnhout via Zoersel, halte op ca. 300 m
De Lijn 429 - Sneldienst Antwerpen-Herentals via Zoersel, halte op ca. 300 m

Voor meer informatie of een bezichtiging, neem contact met ons op.


Uw contact

Vincent Verhoeven 0484 89 49 89
contact

Details van het pand

Financieel

Prijs
€ 2.500,00/maand

Gebouw

Oppervlakte
500,00 m²
Staat
Uitstekend

Stedenbouw

Bestemming
Industriegebied
Bouwvergunning
Ja
Voorkooprecht
Nee
Dagvaarding
Nee - geen rechterlijke herstelmaatregel of bestuurlijke maatregel opgelegd
O-peil
Niet gelegen in een overstromingsgevoelig gebied
G-score
D
P-score
D
Vonnissen
Nee
Servitude
Nee

Meer info over deze eigendom

Bedankt voor je bericht, we contacteren je zo spoedig mogelijk.
Er was een probleem bij het versturen van het formulier, gelieve opnieuw te proberen.
U moet de algemene voorwaarden aanvaarden om dit bericht te kunnen verzenden
(*) Gelieve de verplichte velden in te vullen.