Kantoor
€ 2.250

Industriestraat 5 BA, 2500 Lier
    • delen

Omschrijving Ref.: 7288127

Magazijn/Atelier op toplocatie langs de ring van Lier


Gelegen op een absolute zichtlocatie langs de ring van Lier, is een uitstekende keuze voor ondernemingen die gezien willen worden. Het gebouw is bekend onder andere als het Antilope Torentje en Abarth Museum, en biedt een aantrekkelijke combinatie van kantoorruimte, showroom en magazijn of atelier.

Voor meer informatie of een bezichtiging, neem contact met ons op.

The Real Estate Company


Uw contact

Vincent Verhoeven 0484 89 49 89
contact

Details van het pand

Financieel

Prijs
€ 2.250,00/maand
Beschikbaarheid
In onderling overleg
Beschikbaarheid datum
01 December 2025

Ligging

Buurt
Kmo-zone

Gebouw

Oppervlakte
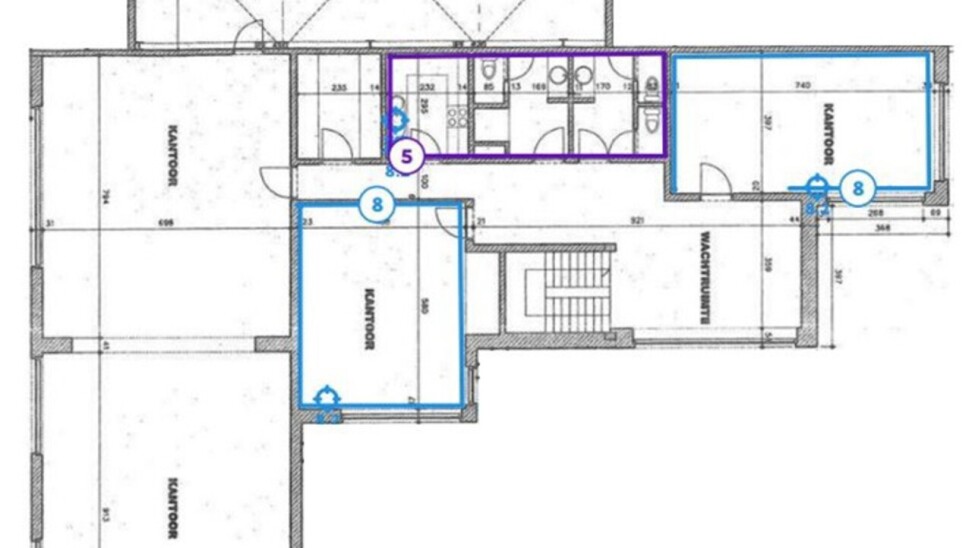
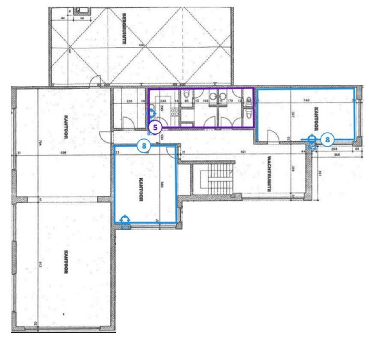
360,00 m²
Staat
Uitstekend
Aantal verdiepingen
1

Parkeermogelijkheden

Garage
9
Parkings buiten
Ja

Indeling

Keuken
Geïnstalleerd
Douchekamers
0
Toiletten
2

Comfort

Handicapvriendelijk
Ja

Energie

Elektriciteitskeuring
Ja, conform
Type verwarming
Gas

Stedenbouw

Bestemming
Industriegebied
Bouwvergunning
Ja
Voorkooprecht
Ja
Dagvaarding
Nee - geen rechterlijke herstelmaatregel of bestuurlijke maatregel opgelegd
O-peil
Niet gelegen in een overstromingsgevoelig gebied
G-score
D
P-score
B
Vonnissen
Nee
Servitude
Nee

Meer info over deze eigendom

Bedankt voor je bericht, we contacteren je zo spoedig mogelijk.
Er was een probleem bij het versturen van het formulier, gelieve opnieuw te proberen.
U moet de algemene voorwaarden aanvaarden om dit bericht te kunnen verzenden
(*) Gelieve de verplichte velden in te vullen.