Gebouw voor gemengd gebruik
€ 750.000

9280 Lebbeke
    • delen

Omschrijving Ref.: 7294822

Multifunctioneel bedrijfsgebouw met woonst en magazijn


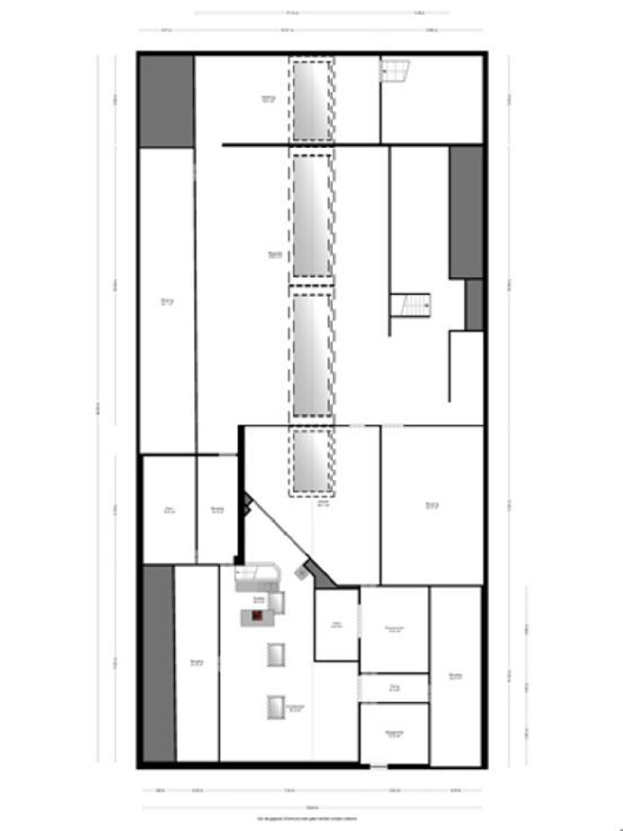
Multifunctioneel bedrijfsgebouw met woonst, kantoor, showroom en magazijn – 2700 m² terrein – Lebbeke

Dit veelzijdig bedrijfsgebouw biedt een unieke combinatie van wonen en werken op een toplocatie vlakbij Opwijk, in de industriezone van Lebbeke (zone voor ambachtelijke bedrijven en KMO’s – D’Helst, intercommunale DDS). Ideaal gelegen aan de Brusselsesteenweg met een vlotte verbinding naar de E40/E19 en de as Brussel – Dendermonde.

Kenmerken:

Perceel: 2.700 m² met uitbreidingsmogelijkheden

Bebouwde oppervlakte gelijkvloers: 40 m x 20 m

Woonst (appartement): 100 m², instapklaar

Magazijn: 537 m² met vrije hoogte van 6 m, lichtstraat en sectionale poort (3 m x 3 m)

Extra burelen en vergaderzaal met sanitair

Eerste verdieping onder dak: open ruimte van 220 m² (momenteel stockage, verdieping mogelijk mits eenvoudige constructie)

Tuin + ruime parkeer- en manoeuvreerruimte op eigen terrein

Extra troeven:

Zonnepanelen aanwezig (EPC houdt hier geen rekening mee)

Veelzijdige indeling: perfect voor showroom, kantoren, opslag of productie

Afzonderlijke inkomhal voor representatieve ontvangst

Kortom: dit gebouw combineert een comfortabele woonst met uitgebreide bedrijfsruimtes en een uitstekende ligging. Ideaal voor ondernemers die wonen en werken willen combineren of bedrijven die op zoek zijn naar uitbreidingsmogelijkheden.

The real estate company


Uw contact

Miguel Costermans 03 232 16 00
contact

Details van het pand

Financieel

Prijs
€ 750.000,00

Ligging

Buurt
Industriële ligging, centraal

Gebouw

Oppervlakte
737,00 m²
Aantal gevels
4
Staat
Hernieuwd
Oriëntatie voorgevel
Noordwesten

Terrein

Grondoppervlakte
2.700,00 m²

Indeling

Keuken
Ja, volledig geïnstalleerd
Toiletten
4

Comfort

Air conditioning
Ja

Specifieke ruimtes

Toiletten M/V
Ja

Energie

EPC
Dubbele beglazing
Ja
Type verwarming
Heteluchtblazers (gas)

Technieken

Kabelgoten
Ja

Stedenbouw

Bestemming
Niet meegedeeld
Bouwvergunning
Niet meegedeeld
Verkavelingsvergunning
Niet meegedeeld
Voorkooprecht
Niet meegedeeld
Dagvaarding
Niet meegedeeld
O-peil
Mogelijk overstromingsgevoelig gebied
G-score
C
P-score
D

Meer info over deze eigendom

Bedankt voor je bericht, we contacteren je zo spoedig mogelijk.
Er was een probleem bij het versturen van het formulier, gelieve opnieuw te proberen.
U moet de algemene voorwaarden aanvaarden om dit bericht te kunnen verzenden
(*) Gelieve de verplichte velden in te vullen.